ALCOVER

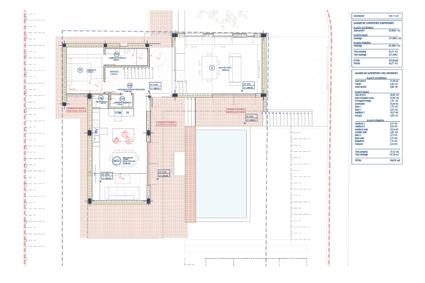
Pere Serra Arquitectura. Projecte d'habitatge unifamiliar aïllat a la urbanització del Mas Gassol, Alcover
Pere Serra Arquitectura. Projecte d'habitatge unifamiliar aïllat a la urbanització del Mas Gassol, Alcover
Pere Serra Arquitectura. Projecte d'habitatge unifamiliar aïllat a la urbanització del Mas Gassol, Alcover
Pere Serra Arquitectura. Projecte d'habitatge unifamiliar aïllat a la urbanització del Mas Gassol, Alcover
Pere Serra Arquitectura. Projecte d'habitatge unifamiliar aïllat a la urbanització del Mas Gassol, Alcover

Projecte d’habitatge unifamiliar aïllat a la urbanització del Mas Gassol, Alcover.

Promotor:

Privat

Projecte:

2021

Ves al contingut
Pere Serra Arquitectura
Resum de la privadesa

Aquest lloc web utilitza galetes per tal de proporcionar-vos la millor experiència d’usuari possible. La informació de les galetes s’emmagatzema al navegador i realitza funcions com ara reconèixer-vos quan torneu a la pàgina web i ajuda a l'equip a comprendre quines seccions del lloc web us semblen més interessants i útils.