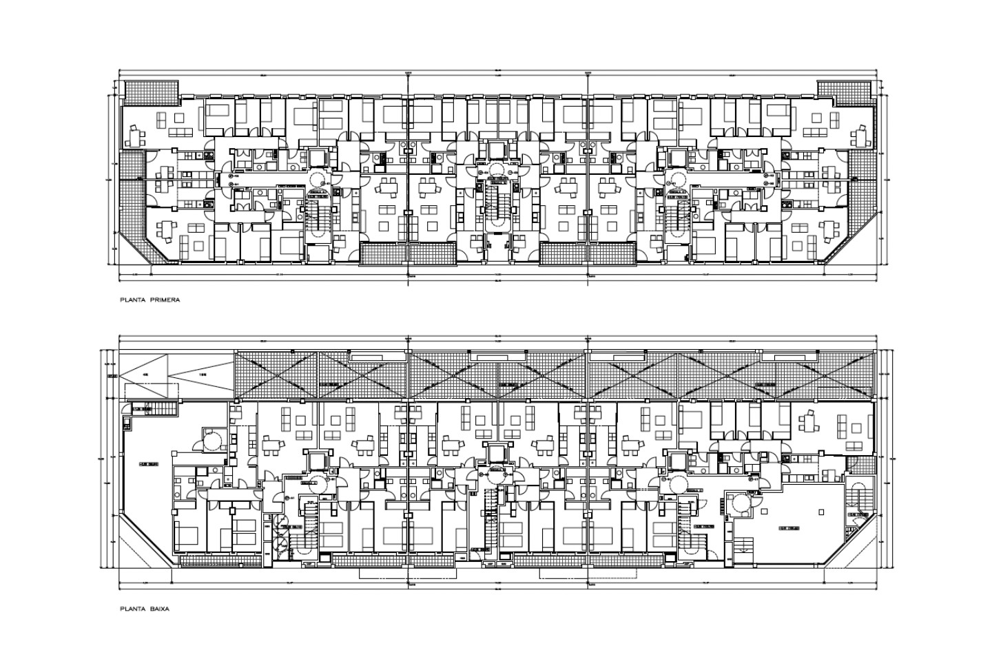
Edifici de 38 habitatges, 2 locals i aparcament a la carretera de Valls de Santa Margarida de Montbui.






Edifici de 38 habitatges, 2 locals i aparcament a la carretera de Valls de Santa Margarida de Montbui.
Promotor:
FBEX PROMO INMOBILIARIA
Obra:
2010