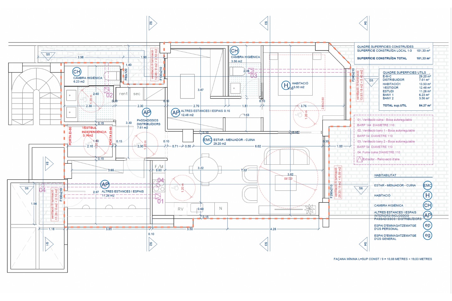
Reforma i canvi d’ús de 3 habitatges a l’Eixample Esquerra de Barcelona. Carrer del Comte d’Urgell, 165.







Reforma i canvi d’ús de 3 habitatges a l’Eixample Esquerra de Barcelona. Carrer del Comte d’Urgell, 165.
Promotor:
Privat
Projecte:
2022
Obra:
2024